Descriptif
Annonce d'un particulier
- Réf. : 9023
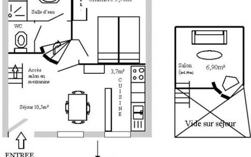
- Type d'hébergement : Gîte 2 pièces
- Surface : 40 m²
- Capacité : 2 pers.
- Etage : 0
Services
Accueil
-
Animaux Acceptés
Equipements
- Terrasse
Loisirs à proximité
- VTT
- Commerces
- Equitation
- Ski alpin
- Ski de fond
Autres Services
- Location draps lit 2 places (/séjour) (25,00 € pour 2 pers. pour le séjour)
- Forfait ménage (45,00 € pour le séjour)





























