Descriptif
Annonce d'un particulier
- Réf. : 6731
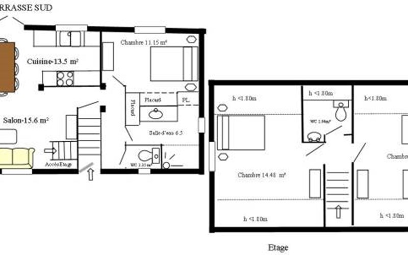
- Type d'hébergement : Gîte 4 pièces
- Surface : 85 m²
- Capacité : 6 pers.
- Etage : 0
Services
Accueil
-
Animaux Interdits
Equipements
- Garage
- Terrasse
Loisirs à proximité
- VTT
- Commerces
- Equitation
- Ski alpin
- Ski de fond
Autres Services
- Location draps lit 2 places (/séjour) (10,00 € pour 2 pers. pour le séjour)
- Location linge de toilette (/pers/séjour) (10,00 € par pers. pour le séjour)
- Forfait ménage (70,00 € pour le séjour)




























