Descriptif
Annonce d'un particulier
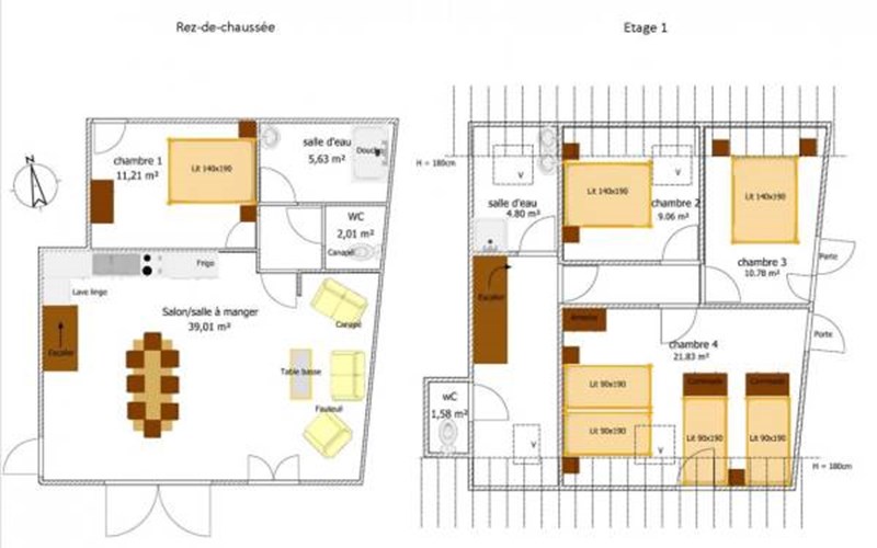
- Réf. : 5745
- Type d'hébergement : Gîte 5 pièces
- Surface : 110 m²
- Capacité : 10 pers.
- Etage : 0
Services
Accueil
-
Animaux Interdits
Equipements
- Terrasse
Loisirs à proximité
- VTT
- Commerces
- Equitation
- Ski alpin
- Ski de fond
Autres Services
- Forfait ménage (100,00 € pour le séjour)
- Location draps lit 1 place (/séjour) (8,00 € par pers. pour le séjour)
- Location draps lit 2 places (/séjour) (14,00 € pour 2 pers. pour le séjour)
- Location linge de toilette (/pers/séjour) (8,00 € par pers. pour le séjour)





















